定期借地権利用の土地活用・空き家/古民家再生・不動産仲介等
不動産のトータルプロデュース」と「相続問題」をサポート
 
ライフデザイン株式会社お問合せ
定休日:水曜日

定期借地権利用の土地活用・空き家/古民家再生・不動産仲介等「不動産のトータルプロデュース」と「相続問題」をサポート
注文住宅 分譲住宅

建 設 事 業

注 文 住 宅 / 分 譲 住 宅

HOME | 建設事業
在宅ワーク対応 デザインハウス

社会・働き方・女性の就業率・暮らし方の変化などから
住まいに持つこだわりに変化が見えます

北摂 デザインハウス 注文住宅
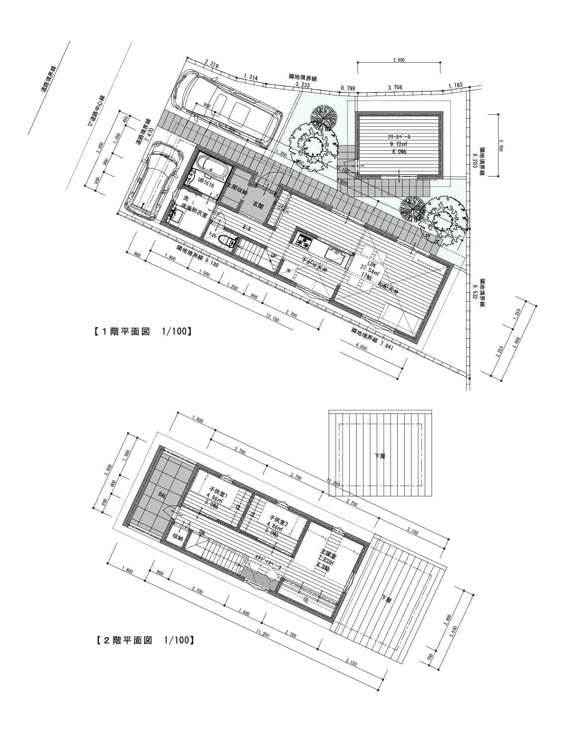
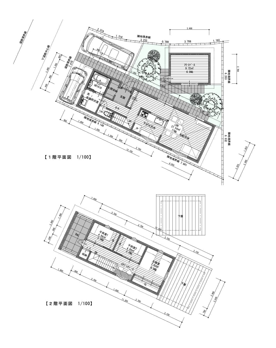
デザインハウス 設計図

奈良 デザインハウス 注文住宅
デザインハウス 設計図

 
 
 

美しい設計図から生まれる家は
外観も内観も美しい

 

自然に囲まれた家

自然の中の田園居住

アパート経営

小さな町並みは里山風景

 
建築素材 自然風施工
建築素材 タイル レンガ 自然風施工
建築素材 タイル レンガ 土壁施工
プリマ・美しい街並み
建築素材 タイル レンガ 土壁施工
 
 
最新技術のリノベーションで夢が叶う
Life Designへのお問合せ
建築素材 タイル レンガ 土壁施工

施主様の理想の住宅を建てる!創る!夢は実現します
お問合せ随時受付中
      
ページトップへ